
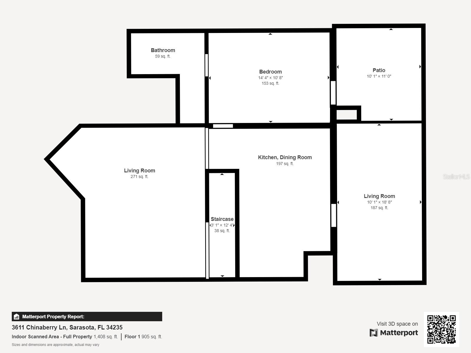
Welcome to 3611 Chinaberry Lane in Sarasota’s Maple Hammock. Rarely available, here’s your opportunity to live in Maple Hammock, an intimate community tucked away in the heart of Sarasota! This DELIGHTFUL TWO-STORY HOME WITH 3 BEDROOMS, 2 BATHROOMS, UPSTAIRS BONUS SPACE, and an OVER-SIZED ONE-CAR GARAGE is located on, arguably, one of the BEST LOTS in the community. The home is at the end of a cul-de-sac, which in addition to the fenced-in yard provides lots of PRIVACY AND LUSH GREENNESS! Throughout the years, homeowners have thoroughly enjoyed the outdoor spaces this home offers. They’ve carefully created a backyard oasis, which includes a spacious patio, a shade gazebo, tropical landscaping, a storage shed, and two enclosed lanais – one is just off the kitchen, and one is off the primary bedroom. This home has great curb appeal starting with the tropical landscaping. The roomy front porch is screened-in and gives off a happy, welcoming vibe! It’s a great space to enjoy your morning coffee and listen to the sounds of nature or kick back at the end of the day! The front door has a glass storm door providing additional natural light. As you step inside, you’ll be greeted by a spacious living room with rich hardwood flooring and as you move toward the back of the home, you’ll enter the kitchen, with a large eat-in dining space with room for a large dining table and a buffet. The kitchen features updated cabinets in rich warm tones, stainless appliances, beautiful tile backsplash, and tile floors. The primary bedroom is on the first floor and has an en-suite bathroom with a walk-in closet. The upstairs features the 2nd and 3rd bedrooms with walk-in closets, a nicely updated bathroom as well as a bonus area which would make a great den, office or playroom. Some seller improvements include a NEW ROOF (2020), NEW AIR HANDLER (2017), NEW INDOOR BLOWER UNIT & UV LIGHT INSTALLED (2022), TOTAL HOUSE DUCT CLEANED (2022), NEW RANGE (2020), FIRST FLOOR FRESHLY PAINTED (2023), UPSTAIRS BONUS ROOM (2024), NEW SCREENS & VINYL WINDOWS LANAI OFF KITCHEN (2024), NEW GAZEBO SHADE (2024), GUTTER GUARDS (2022), NEW WASHING MACHINE (2019), NEW MICROWAVE (2022). The Maple Hammock community pool, in its picturesque setting, is perfect for enjoying a leisurely swim or just relaxing poolside. Maple Hammock is just minutes from Downtown Sarasota, the white sandy beaches of Lido, Longboat & Siesta Keys, world-class arts, museums, theatre, shopping, dining, Nathan Benderson Park, the new Mote SEA Aquarium, the University Town Center – a world-class shopping mall and so much more! DON’T MISS THIS OPPORTUNITY – SCHEDULE A SHOWING TODAY!!!
Listed by: White Sands Realty Group Fl 941-923-5835. Listing information ©My Florida Regional MLS DBA Stellar MLS 2025. All listing information is deemed reliable but not guaranteed and should be independently verified through personal inspection by appropriate professionals. Listings displayed on this website may be subject to prior sale or removal from sale. Availability of any listing should always be independently verified. Listing information is provided for consumer personal, non-commercial use, solely to identify potential properties for potential purchase. All other use is strictly prohibited and may violate relevant federal and state law. The listing broker’s offer of compensation is made only to participants of the MLS where the listing is filed. Properties displayed may be listed or sold by various
participants in the MLS. Data last updated on Monday, March 24th, 2025 at 11:10:40 AM.
Data services provided by IDX Broker
| Price: | $379900 |
| Address: | 3611 Chinaberry Lane |
| City: | Sarasota |
| County: | Sarasota |
| State: | Florida |
| Subdivision: | Maple Hammock |
| MLS: | A4620080 |
| Square Feet: | 1,468 |
| Acres: | 0.11 |
| Lot Square Feet: | 0.11 acres |
| Bedrooms: | 3 |
| Bathrooms: | 2 |
| cddyn: | no |
| levels: | One |
| taxLot: | 19 |
| taxYear: | 2023 |
| garageYN: | yes |
| roomCount: | 5 |
| highSchool: | Booker High |
| vegetation: | Mature Landscaping, Trees/Landscaped |
| homesteadYN: | no |
| waterViewYN: | no |
| currentPrice: | 379900.00 |
| daysToClosed: | 220 |
| listingTerms: | Cash, Conventional, FHA, VA Loan |
| minimumLease: | 1 Month |
| totalAcreage: | 0 to less than 1/4 |
| floodZoneCode: | X,X500 |
| taxBookNumber: | 34-10 |
| waterAccessYN: | no |
| waterExtrasYN: | no |
| contractStatus: | Financing,Inspections |
| directionFaces: | South |
| associationName: | Christine Worthley |
| livingAreaUnits: | Square Feet |
| petRestrictions: | Buyer to verify any pet restrictions with the HOA. |
| roadSurfaceType: | Asphalt |
| taxAnnualAmount: | 4730.07 |
| totalAnnualFees: | 400.00 |
| elementarySchool: | Gocio Elementary |
| existLseTenantYN: | no |
| livingAreaMeters: | 136.38 |
| livingAreaSource: | Public Records |
| monthlyHoaAmount: | 33.33 |
| totalMonthlyFees: | 33.33 |
| buildingAreaTotal: | 2193 |
| buildingAreaUnits: | Square Feet |
| publicSurveyRange: | 18E |
| attributionContact: | 941-923-5835 |
| backupsRequestedYN: | 1 |
| buildingAreaSource: | Public Records |
| listingExclusionYN: | 1 |
| availableForLeaseYN: | yes |
| leaseRestrictionsYN: | 1 |
| lotSizeSquareMeters: | 445 |
| publicSurveySection: | 09 |
| middleOrJuniorSchool: | Booker Middle |
| swSubdivCommunityName: | Maple Hammock |
| associationFeeIncludes: | Common Area Taxes, Pool |
| associationFeeFrequency: | Semi-Annually |
| buildingAreaTotalSrchSqM: | 203.74 |
| specialListingConditions: | None |
| associationFeeRequirement: | Required |
| closePriceByCalculatedSqFt: | 258.79 |
| additionalLeaseRestrictions: | Buyer to verify any leasing restrictions with the HOA. |
| ratioCurrentPriceByCalculate: | 258.79 |
| associationApprovalRequiredYN: | no |

